产品特点
1、设计合理,规格、型号齐全,产品系列化,便于选型,通用、综合配套性强,操作简便,易于维修。
2、如果所有闸门配置电液动式回转驱动器或电液推杆为动力源,能使闸门启闭快速、灵活,且又具有带负荷启动能力以及超载保护功能。可避免烧坏电机,设备运行平稳、可靠。整机结构紧凑,重量轻、耗电省、噪音小、安装方便。
3、全液支传动,其推、拉力均可实现无极调节,驱动力范围广。可精确调节往复行程,位置自锁,通过调节闸门开启度,控制闸门流量
4、投资小。因为所有型号闸门均规范化设计,系列化生产,有利于降低成本,而且单体的闸门可配置一台或数台电液动式回转驱动器或电液推杆,即可实现全液动传动。不需专门设液压站,无任何的附属设备。
5、应用范围广泛。由于考虑闸门可能在各种环境下工作,所以在设计中尽量扩大了闸门的型号、规格、品种、系列的配套设计,可广泛适用于各行业的散状料的贮运。
6、散状料闸门所配电淮动式回转驱动器或电液推杆能够实现行程控制、信号显示;无程集中控制、数字显示;或 4 - 20mA 微机控制
使用范围
1、所有闸门适用于堆比重 ≤ 2.5t/m3 的各类矿石、煤炭、焦炭、灰渣、化工产品等散状物料。在腐蚀性较强或高温条件下使用时,可更换闸门的材质。在防爆场所使用时,可用 XDGB 型电液推杆或 DYQB 型防爆电液动式回转驱动器。
2、三通分料器 (A 、 B 型 ) 可直接将上部法兰接在胶带机头部漏斗下部或其它设备下料接口处。 C 、 D 、 E 型三通分料器联接方式同上,但其一般用在堆比重 ≤ 2.8t/m3 ,且磨损性较大,工作环境恶劣的条件下。其结构尺寸较大(衬板也较厚),所以重量大,使用时需根据实际情况另加支承。 A 、 B 、 C 、 D 、 E 型且通分料器均可实现物料的双向切换及双向分流。
产品型号编制规则

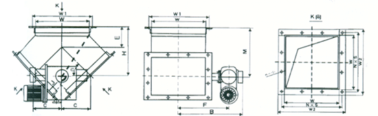
微型三通分料器(转角器驱动)

外型尺寸及技术参数表
型号 |
W |
W1 |
W2 |
α° |
B |
C |
F |
H |
M |
E |
n-φ |
N×S |
J |
转角器驱动型号 |
功率(kw) |
DSF-20-45 |
200 |
240 |
280 |
45 |
360 |
177 |
240 |
307 |
200 |
130 |
8-14 |
2×120 |
150 |
ZDY45 |
0.18 |
DSF-20-60 |
200 |
240 |
280 |
60 |
360 |
162 |
240 |
411 |
280 |
130 |
8-14 |
2×120 |
150 |
ZDY45 |
0.18 |
DSF-25-45 |
250 |
290 |
330 |
45 |
385 |
194 |
265 |
324 |
230 |
130 |
8-14 |
2×145 |
150 |
ZDY45 |
0.18 |
DSF-25-60 |
250 |
290 |
330 |
60 |
385 |
183 |
265 |
447 |
330 |
130 |
8-14 |
2×145 |
150 |
ZDY80 |
0.18 |
DSF-30-45 |
300 |
350 |
400 |
45 |
420 |
247 |
300 |
377 |
280 |
130 |
8-14 |
2×175 |
200 |
ZDY80 |
0.18 |
DSF-30-60 |
300 |
350 |
400 |
60 |
420 |
330 |
300 |
528 |
370 |
130 |
8-14 |
2×175 |
200 |
ZDY80 |
0.18 |
DSF-40-45 |
400 |
450 |
500 |
45 |
470 |
318 |
350 |
468 |
360 |
150 |
12-14 |
3×150 |
250 |
ZDY80 |
0.18 |
DSF-40-60 |
400 |
450 |
500 |
60 |
470 |
323 |
350 |
709 |
520 |
150 |
12-14 |
3×150 |
300 |
ZDY80 |
0.18 |
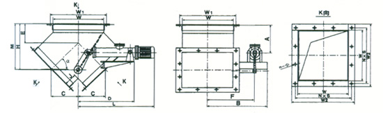
微型三通分料器(电液推杆驱动)

型号 |
W |
W1 |
W2 |
α° |
A |
B |
C |
D |
F |
H |
L |
M |
E |
n-φ |
N×S |
J |
转角器驱动型号 |
功率(kw) |
DSF-20-45 |
200 |
240 |
280 |
45 |
90 |
360 |
177 |
640 |
240 |
307 |
700 |
200 |
130 |
8-14 |
2×120 |
150 |
ZDY200-200 |
0.37 |
DSF-20-60 |
200 |
240 |
280 |
60 |
150 |
360 |
162 |
640 |
240 |
411 |
700 |
280 |
130 |
8-14 |
2×120 |
150 |
ZDY200-200 |
0.37 |
DSF-25-45 |
250 |
290 |
330 |
45 |
120 |
385 |
194 |
640 |
265 |
324 |
700 |
230 |
130 |
8-14 |
2×145 |
150 |
ZDY300-200 |
0.37 |
DSF-25-60 |
250 |
290 |
330 |
60 |
180 |
385 |
183 |
640 |
265 |
447 |
700 |
330 |
130 |
8-14 |
2×145 |
150 |
ZDY300-200 |
0.55 |
DSF-30-45 |
300 |
350 |
400 |
45 |
140 |
420 |
247 |
820 |
300 |
377 |
880 |
280 |
130 |
8-14 |
2×175 |
200 |
ZDY300-250 |
0.55 |
DSF-30-60 |
300 |
350 |
400 |
60 |
210 |
420 |
330 |
820 |
300 |
528 |
880 |
370 |
130 |
8-14 |
2×175 |
200 |
ZDY300-250 |
0.55 |
DSF-40-45 |
400 |
450 |
500 |
45 |
220 |
470 |
318 |
820 |
350 |
468 |
880 |
360 |
150 |
12-14 |
3×150 |
250 |
ZDY500-250 |
0.55 |
DSF-40-60 |
400 |
450 |
500 |
60 |
360 |
470 |
323 |
820 |
350 |
709 |
880 |
520 |
150 |
12-14 |
3×150 |
300 |
ZDY500-250 |
0.55 |
三通分料器外形图

外形尺寸及技术参数表(A、B型)
型号 |
W (mm) |
对应胶 带机宽 度(mm) |
α° |
主要尺寸(mm) |
电液推杆型号 |
功率(kw) |
C |
H |
M |
A |
F |
P |
D |
L |
J |
E |
t |
t1 |
n |
φ |
N |
S |
b |
DSF-50A(B)45 |

|

|
45° |
265 |
458 |
426 |
206 |
831 |
200 |
193 |
375 |
150 |
100 |
6 |
8 |
12 |
14 |
3 |
170 |
30 |
DYT1000-150 |
1.1 |
DSF-50A(B)50 |
50° |
269 |
502 |
447 |
197 |
826 |
200 |
182 |
418 |
DSF-50A(B)55 |
55° |
270 |
556 |
477 |
187 |
821 |
200 |
171 |
471 |
DSF-50A(B)60 |
60° |
320 |
715 |
526 |
214 |
850 |
250 |
161 |
640 |
250 |
DSF-50A(B)70 |
70° |
297 |
954 |
711 |
193 |
829 |
300 |
138 |
868 |
DSF-65A(B)45 |

|

|
45° |
318 |
542 |
563 |
252 |
879 |
250 |
224 |
450 |
150 |
100 |
6 |
8 |
12 |
14 |
3 |
220 |
30 |
DYT1000-250 |
1.5 |
DSF-65A(B)50 |
50° |
326 |
598 |
591 |
242 |
864 |
250 |
210 |
507 |
DSF-65A(B)55 |
55° |
332 |
668 |
632 |
229 |
857 |
250 |
194 |
578 |
DSF-65A(B)60 |
60° |
385 |
848 |
696 |
253 |
884 |
300 |
181 |
770 |
250 |
DSF-65A(B)70 |
70° |
367 |
1164 |
948 |
222 |
854 |
350 |
156 |
1074 |
DSF-80A(B)45 |

|

|
45° |
353 |
598 |
655 |
250 |
873 |
250 |
245 |
500 |
150 |
100 |
8 |
8 |
16 |
14 |
4 |
190 |
30 |
DSF-80A(B)50 |
50° |
364 |
661 |
686 |
241 |
868 |
250 |
227 |
566 |
DSF-80A(B)55 |
55° |
373 |
742 |
734 |
273 |
904 |
300 |
209 |
650 |
DSF-80A(B)60 |
60° |
428 |
935 |
809 |
252 |
889 |
300 |
194 |
856 |
250 |
DSF-80A(B)70 |
70° |
414 |
1302 |
1104 |
221 |
858 |
350 |
165 |
1212 |
DSF-100A(B)45 |

|

|
45° |
389 |
655 |
742 |
300 |
958 |
300 |
266 |
550 |
150 |
100 |
8 |
10 |
16 |
14 |
4 |
215 |
30 |
DYT3000-300 |
|