用途
该闸阀广泛适用于建材、冶金、矿山等行业粉尘物料流量控制的管道上,是控制粉尘物料流量的理想设备。
特点
该闸阀结构简单,重量轻,操作灵活,装拆方便,采用优质碳素钢制造,其强度高,性能好,使用寿命长;丝杆及螺母采用了软防护罩结构,不受外界粉尘影响。
工作原理
该闸门主要由框架、丝杆螺母、手轮、闸板组成,手轮(链轮)转动,丝杆带着丝杆螺母和闸板作水平方向的往复运动,达到阀门的启闭目的。
产品型号编制规则

主要性能参数
公称压力(MPa) |
|
适用温度(℃) |
≤150 |
适用介质 |
粉尘物料 |
|
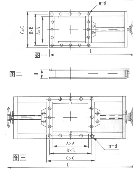
SL/DS型手动式平板闸门外形及连接尺寸
用途
手动单、双向螺旋闸门是用于粉料、晶粒料、颗粒料及小块物料的流量、输送量的主要控制设备,它广泛适用于冶金、矿山、建材、粮食、化工等行业库顶、库底及送料口等,是控制流量变化大,启闭频繁,切断迅速的理想设备。
特点
该闸门结构简单、操纵灵活、重量轻、无卡阻、切断快、特别适用于各类固体物料和φ50左右块状物料的输送及流量调节,安装不受角度限制。操作方便,能随时调整开度。
|

|
类别 |
A×A |
B×B |
C×C |
L |
H |
n-d |
单向 |
200×200 |
256×256 |
306×306 |
820 |
120 |
8-φ14 |
250×250 |
306×306 |
346×346 |
930 |
120 |
8-φ14 |
300×300 |
336×336 |
396×396 |
1050 |
120 |
8-φ14 |
400×400 |
456×456 |
496×496 |
1400 |
140 |
12-φ14 |
450×450 |
510×510 |
556×556 |
1450 |
140 |
12-φ14 |
500×500 |
560×560 |
606×606 |
1610 |
140 |
16-φ18 |
双向 |
600×600 |
660×660 |
706×706 |
1830 |
160 |
16-φ18 |
700×700 |
770×770 |
820×820 |
2130 |
160 |
20-φ18 |
800×800 |
870×870 |
920×920 |
244 |
180 |
20-φ18 |
900×900 |
974×974 |
1030×1030 |
2660 |
180 |
24-φ23 |
|
1000×1000 |
1074×1074 |
1130×1130 |
2870 |
180 |
24-φ23 |
说明 |
SLVd-单向 |
Ⅰ-手轮 |
距地面小于1.7米用手轮,大于1.7米用链轮链条节数M=0.105×-113X(X是丝杆中心离地面离度) |
SLVs-双向 |
Ⅱ-链轮 |
注:本阀可按用户要求设计制造
|
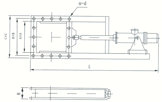
DPZD型电液动单缸驱动平板闸门
用途
该闸门是我公司改进产品,工艺先进,质量可靠。它广泛地用于冶金、矿山、建材等行业,是控制粉尘物料流量的理想设备。
特点
本闸门操作方便,结构简单。性能好,使用寿命长。
工作原理
该闸门主要由框架、闸板、电液装置等零件组成。工作时,活塞杆受液压力作用带动闸板作水平方向的往复运动,达到阀门的启闭目的。
|

|
主要性能参数
公称压力(MPa) |
≤0.6 |
适用介质 |
粉尘物料 |
适用温度(℃) |
≤150 |
阀门启闭时间(S) |
17.3 |
电液动单缸驱动平板闸门技术参数
型号 |
A×A |
B×B |
C×C |
L |
H |
n-d |
电液推杆型号 |
功率(kw) |
DPZ-D20 |
200×200 |
256×256 |
306×306 |
920 |
120 |
8-φ14 |
DYT1000-200 |
1.5 |
DPZ-D25 |
250×250 |
306×306 |
346×346 |
1050 |
120 |
8-φ14 |
DYT1000-250 |
1.5 |
DPZ-D30 |
300×300 |
336×336 |
396×396 |
1260 |
120 |
8-φ14 |
DYT1000-300 |
1.5 |
DPZ-D40 |
400×400 |
456×456 |
496×496 |
1256 |
140 |
12-φ14 |
DYT1750-400 |
2.2 |
DPZ-D45 |
450×450 |
510×510 |
556×556 |
1670 |
140 |
12-φ14 |
DYT1750-450 |
2.2 |
DPZ-D50 |
500×500 |
560×560 |
606×606 |
1890 |
140 |
16-φ18 |
DYT1750-500 |
2.2 |
DPZ-D60 |
600×600 |
660×660 |
706×706 |
2220 |
160 |
16-φ18 |
DYT2500-600 |
3 |
DPZ-D70 |
700×700 |
770×770 |
820×820 |
2520 |
160 |
20-φ18 |
DYT2500-700 |
3 |
DPZ-D80 |
800×800 |
870×870 |
920×920 |
2750 |
180 |
20-φ18 |
DYT3000-800 |
4 |
DPZ-D90 |
900×900 |
974×974 |
1030×1030 |
2950 |
180 |
24-φ23 |
DYT3000-900 |
4 |
DPZ-D100 |
1000×1000 |
1074×1074 |
1130×1130 |
3110 |
180 |
24-φ23 |
DYT3000-1000 |
4 |
注:本阀可按用户要求设计制造

电液动双缸驱动平板闸门技术参数
型号 |
主要尺寸(mm) |
电液推杆型号 |
A |
B |
N×a |
C |
H |
L |
t |
n-φ |
DPZ-S40 |
400 |
750 |
3×160 |
450 |
200 |
1150 |
8 |
24-22 |
DYT1000-400 |
DPZ-S50 |
500 |
850 |
3×195 |
550 |
200 |
1250 |
8 |
24-22 |
DYT1000-500 |
DPZ-S60 |
600 |
950 |
4×170 |
650 |
200 |
1350 |
8 |
32-22 |
DYT1000-600 |
DPZ-S70 |
700 |
1060 |
4×198 |
780 |
250 |
1550 |
10 |
32-22 |
DYT1750-700 |
DPZ-S80 |
800 |
1160 |
5×178 |
880 |
250 |
1650 |
10 |
40-22 |
DYT1750-800 |
DPZ-S90 |
900 |
1260 |
5×198 |
980 |
250 |
1750 |
10 |
40-22 |
DYT1750-900 |
DPZ-S100 |
1000 |
1430 |
5×220 |
1100 |
300 |
1950 |
12 |
40-26 |
DYT1750-1000 |
DPZ-S120 |
1200 |
1630 |
5×260 |
1300 |
300 |
2150 |
12 |
40-26 |
DYT2500-1200 |
订货须知:
1.用户在订货时,必质按样本中的选型形式选型,所有类型平板闸门都为一般型,如果是特殊要求(如散状特料颗粒大于20mm时,此时需要增大闸板强度)请另说明。
2.平板闸门配套的电液推杆,在正常情况下,不配套电气控制部分,如果需要请订货时注明。(推杆电气控制图见电液推杆部分)。
3.关于安装、使用、维修的注意事项,请另见《平板闸门安装、使用、维修》说明书(随货同行)。